Doppelcontainer für Familien

So gut wie fertig ist der erste L-förmige Bau direkt neben dem 3-stöckigen Gebäude auf der Wiese an der IGP. Da sind die Küchen und Waschräume eingerichtet, aber Betten sind immer noch nicht da. Ein Einzelkontainer für 2 Personen war hergerichtet mit zwei Betten, Schrank, Tisch und Stühlen. In einem Doppelkontainer, wie sie für Familien gedacht sind,  standen zu Demonstrationszwecken zwei Bettgestelle, sonst nichts.

Hinweis der Redaktion: Einen ausführlichen Beitrag zum Stand der Dinge, den Details und den offenen Fragen finden Sie hier.

+ Anzeige +

Einzelcontainer für 2 Personen

Die Küchen haben 3 Kochstellen mit einer Arbeitsplatte dazwischen und 3 Spülen mit Unterschränken.

Spülwasser aus dem Durchlauferhitzer.
Die Waschräume sind mit je 2 Waschmaschinen und 2 Trocknern bestückt.
 Duschen und WCs. Auch hier Warmwasser aus dem Durchlauferhitzer.
Gegenüber der Duschkabinen: Waschbecken.
WC Herren
Jedes L-Gebäude hat einen großen Gemeinschaftsraum, bestehend aus 3 Containern.

In beiden anderen L-Modulen arbeiteten die Elektroinstallateure. Da sah es noch sehr nach Baustelle aus. Überall lag Baumaterial und Werkzeug und Menschen waren bei der Arbeit.

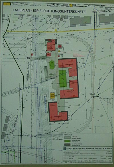
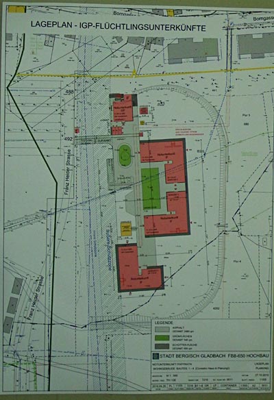
Alle 3 Gebäude sind von der Ausstattung her identisch. Zur Erinnerung noch einmal eine Planzeichnung.

Auf dieser Zeichnung sieht man mittig einen grünen Fleck. Das wird ein Spielplatz.

2016-05-11-031

Das ist die Planskizze des Spielplatzes. Die Schrift ist auf dem Foto kaum lesbar. Das gelbe ist Sand. Im linken Teil sind Geräte für größere Kinder geplant, im rechten Teil für kleinere Kinder und eine Doppelschaukel. Im grauen Bereich (Pflaster) ist rechts eine Tischtennisplatte vorgesehen. Die Sandkästen sind mit U-Steinen als Sitzplätze eingefasst, das Rote sind auch Sitzplätze.

Reden Sie mit, geben Sie einen Kommentar ab

Deine E-Mail-Adresse wird nicht veröffentlicht. Erforderliche Felder sind mit * markiert

Diese Website verwendet Akismet, um Spam zu reduzieren. Erfahre, wie deine Kommentardaten verarbeitet werden.